Villa te koop in Fuente Alamo
310,000 €
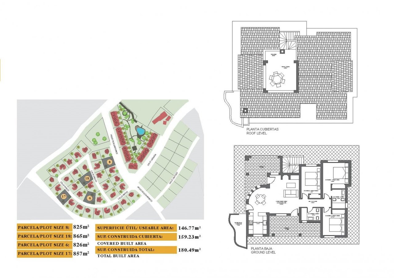
SLEUTELKLARE VILLA IN FUENTE ALAMO, MURCIA Residentie van herenhuizen, vrijstaande en halfvrijstaande villa’s in Fuente Álamo, Murcia. U kunt kiezen uit zeven verschillende modellen huizen, ontworpen naar ieders smaak. Rustieke ontwerpen gecombineerd met materialen van topkwaliteit en een focus op comfortabele leefruimte is er voor elk wat wils. De bewoners van deze besloten gemeenschap van mooie, ruime woningen zullen ook kunnen genieten van hun eigen gemeenschappelijke tuinen en zwembaden. Deze ongewone designvilla heeft 3 slaapkamers en 2 badkamers, onafhankelijke keuken, woonkamer met openslaande deuren naar de overdekte veranda. Een optie voor een privé zwembad tegen meerprijs. Fuente Álamo de Murcia is een stad en gemeente in de regio Murcia, Zuid-Spanje. Het ligt 22 km ten noordwesten van Cartagena en 35 km ten zuidwesten van Murcia. De stad ligt in het stroomgebied van de Mar Menor, omgeven door de bergen Algarrobo, Los Gómez, Los Victorias en de Carrascoy. Het water van deze bergen stroomt naar beneden in de Rambla de Fuente Álamo en vervolgens naar de Mar Menor. Fuente Álamo ligt op 30 minuten van de luchthaven van Murcia – Corvera.
Video
Doe een aanvraag
Referentie: 707669
Tina Durán
Telefoon: (+34) 661 207 385
Mobiel: (+34) 661 207 385
E-mail: tina@sunvillasmurcia.com