Townhouse te koop in Cartagena

255,000

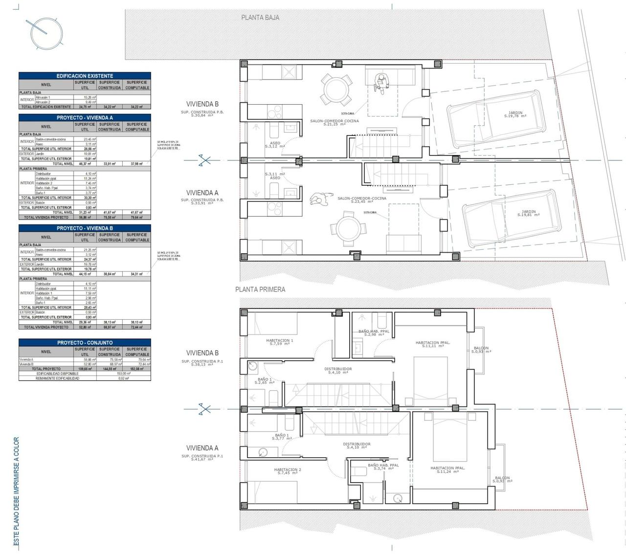
Nieuwbouwwoningen op 50 meter van het strand in La Azohia Cartagena Exclusieve woningen aan de kust op een steenworp afstand van de Middellandse Zee Ontdek deze zeer beperkte nieuwbouwproject van slechts twee moderne herenhuizen op slechts 50 meter van het strand in La Azohia, Cartagena. Deze bevoorrechte enclave aan zee aan de Costa Calida staat bekend om zijn kristalheldere water, ontspannen sfeer en ongerepte natuurlijke omgeving. La Azohia is ideaal voor wie op zoek is naar rust aan zee en biedt een authentieke mediterrane levensstijl met kleine baaien, restaurants aan zee en prachtige wandelingen langs de kust. Moderne indeling met uitzicht op zee en privé-solarium Elk herenhuis is verdeeld over twee verdiepingen plus een privé-solarium op het dak met vrij uitzicht op de Middellandse Zee. De begane grond beschikt over een lichte open woon-eetkamer met keuken, ontworpen om het natuurlijke licht en comfort te maximaliseren. Op deze verdieping bevindt zich ook een complete badkamer en directe toegang tot een privétuin. De tuin biedt flexibiliteit, omdat deze kan worden gebruikt voor offroad parkeren of tegen meerprijs kan worden opgewaardeerd met een privézwembad. Op de eerste verdieping bevindt zich het slaapgedeelte met een ruime hoofdslaapkamer met en suite badkamer, een tweede eenpersoonsslaapkamer en een extra complete badkamer. De bovenste verdieping is bestemd voor een privésolarium, een uitzonderlijke ruimte om te genieten van het uitzicht op zee, het hele jaar door te zonnen of een chill-outruimte te creëren voor buitenleven. Hoogwaardige afwerking en comfortabele voorzieningen Deze nieuwbouwwoningen zijn gebouwd met hoogwaardige materialen en afwerkingen om duurzaamheid, comfort en een moderne stijl te garanderen. Tot de voorzieningen behoren inbouwkasten in de slaapkamers, voorinstallatie voor airconditioning en voorinstallatie voor de keuken, zodat kopers de ruimte naar eigen smaak kunnen personaliseren. Het eigentijdse ontwerp in combinatie met de functionele indeling maakt deze woningen ideaal als permanente woning, vakantiehuis of investeringsobject. Toplocatie in La Azohia Cartagena La Azohia is een charmant kustplaatsje in de gemeente Cartagena, dat wordt gewaardeerd om zijn rustige omgeving, beschermde mariene gebied en nabijheid van de natuur. Het gebied biedt basisvoorzieningen, lokale restaurants en gemakkelijke toegang tot grotere steden en voorzieningen, terwijl het zijn ontspannen charme aan zee behoudt. Belangrijkste afstanden tot bezienswaardigheden Strand van La Azohia: 50 m Centrum van Cartagena: 25 km Jachthaven van Puerto de Mazarron: 20 km La Manga Club Golf Resort: 35 km Luchthaven Murcia Corvera: 45 km Luchthaven Alicante: 120 km Mediterrane levensstijl aan zee Wonen in La Azohia betekent het hele jaar door genieten van zon, uitzicht op zee en een rustiger levenstempo. De combinatie van de nabijheid van het strand, het moderne ontwerp en de beperkte beschikbaarheid maakt deze promotie tot een unieke kans aan de Costa Calida. Neem vandaag nog contact met ons op Mis deze kans niet om een nieuwbouwwoning te kopen op een steenworp afstand van de zee in La Azohia. Neem nu contact met ons op voor meer informatie of om een bezichtiging te regelen en een van deze exclusieve woningen aan de kust te bemachtigen.

Video

Details van het eigendom
Referentie: 751411
Prijs: 255,000
Grootte van het eigendom: 79m2
Plot: 19m2
Slaapkamers: 2
Badkamers: 3
Genoteerd: 30/12/2025

Doe een aanvraag

Referentie: 751411

Tina Durán

Telefoon: (+34) 661 207 385

Mobiel: (+34) 661 207 385

E-mail: tina@sunvillasmurcia.com

(Open in nieuw venster)
Doe een aanvraag
Referentie: 751411

Telefoon:
(+34) 661 207 385

Mobiel:
(+34) 661 207 385

E-mail:

Doe een aanvraag

Deel