Appartement te koop in San Pedro del Pinatar

127,900

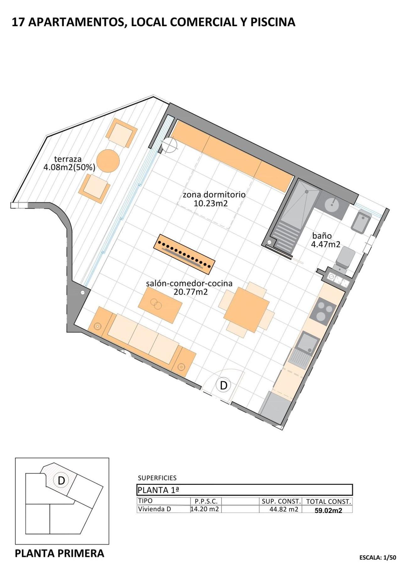
Nieuwbouw toeristische appartementen vlakbij het strand in Lo Pagan, San Pedro del Pinatar Exclusieve woonwijk aan de kust met toeristische vergunning Dit nieuwbouwcomplex bestaat uit 17 moderne appartementen met toeristische vergunning in Lo Pagan, San Pedro del Pinatar, op slechts 700 meter van het strand. Gelegen in een van de meest aantrekkelijke gebieden van de Mar Menor, biedt dit project een uitstekende kans om te genieten van de mediterrane levensstijl en tegelijkertijd te profiteren van een sterk potentieel voor verhuurinvesteringen. Lo Pagan is een gevestigde kuststreek die bekend staat om zijn ontspannen sfeer, natuurlijke modderbaden en de nabijheid van zowel de Mar Menor als de Middellandse Zee. Moderne studio’s en appartementen met één slaapkamer Het project biedt ruime studio’s van meer dan 45 m2 en appartementen met één slaapkamer, allemaal ontworpen met het oog op functionaliteit en comfort. Elke woning beschikt over royale terrassen die de leefruimte naar buiten uitbreiden, ideaal om het hele jaar door van het milde klimaat te genieten. De open keukens sluiten naadloos aan op de lichte woonruimtes, waardoor een uitnodigend en praktisch interieur ontstaat. Alle woningen hebben een eigen berging, wat extra gemak biedt voor eigenaren en gasten. Hoogwaardige afwerking en volledig uitgeruste woningen Alle appartementen zijn gebouwd volgens hoge kwaliteitsnormen en worden volledig gemeubileerd en gebruiksklaar opgeleverd. De badkamers zijn voorzien van inbouwmeubilair, verlichte spiegels, elektrische handdoekrekken en doucheschermen. De keukens zijn volledig uitgerust met moderne apparatuur en eigentijdse kasten. Er is airconditioning met split-units geïnstalleerd, wat het hele jaar door comfort garandeert. Grote schuifdeuren met drie rails tussen de woonkamer en het terras kunnen volledig worden geopend, waardoor de binnen- en buitenruimtes worden geïntegreerd en er meer natuurlijk licht binnenkomt. Gemeenschappelijke ruimtes op het dak met zwembad en solarium Het wooncomplex beschikt over aantrekkelijke gemeenschappelijke ruimtes die zijn ontworpen voor ontspanning en vrije tijd. Op het dak kunnen bewoners genieten van een gemeenschappelijk zwembad en solarium met vrij uitzicht, dat gemakkelijk bereikbaar is met de lift. Deze verhoogde ruimte biedt een perfecte omgeving om te ontspannen, te zonnen of te socializen terwijl u geniet van de kustomgeving. Het leven in Lo Pagan en San Pedro del Pinatar San Pedro del Pinatar ligt op een bevoorrechte locatie tussen twee zeeën, waardoor het een populaire bestemming is voor strandliefhebbers en watersporters. Het gebied biedt jachthavens, watersportclubs en rustig, ondiep water dat ideaal is voor gezinnen. Lo Pagan is vooral bekend om zijn natuurlijke modderbaden en zijn levendige boulevard met restaurants, cafés en lokale winkels. De stad biedt ook sportfaciliteiten, een overdekt zwembad en het hele jaar door activiteiten, ondersteund door een aangenaam winterklimaat. Belangrijkste afstanden tot bezienswaardigheden Strand van Lo Pagan: 0,7 km Jachthaven en haven van San Pedro del Pinatar: 1,5 km Winkelcentrum Dos Mares: 2 km Lo Romero Golf: 10 km Luchthaven Murcia Corvera: 35 km Luchthaven Alicante: 80 km Investeer of geniet van de mediterrane levensstijl Neem vandaag nog contact met ons op voor meer informatie of om een bezichtiging te regelen van deze nieuw gebouwde appartementen met toeristische vergunning in Lo Pagan, San Pedro del Pinatar, en verzeker uzelf van een plek aan zee.

Video

Details van het eigendom
Referentie: 751631
Prijs: 127,900
Grootte van het eigendom: 44m2
Plot: 0m2
Slaapkamers: 0
Badkamers: 1
Genoteerd: 09/01/2026

Doe een aanvraag

Referentie: 751631

Tina Durán

Telefoon: (+34) 661 207 385

Mobiel: (+34) 661 207 385

E-mail: tina@sunvillasmurcia.com

(Open in nieuw venster)
Doe een aanvraag
Referentie: 751631

Telefoon:
(+34) 661 207 385

Mobiel:
(+34) 661 207 385

E-mail:

Doe een aanvraag

Deel