Villa te koop in Los Alcazares

630,000

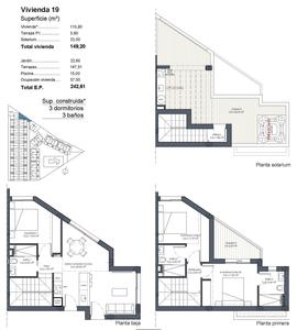
Nieuwbouwwoningen met privézwembad bij Serena Golf-Los Alcazares Boutique collectie van moderne woningen vlakbij de zee Ontdek een exclusief boutique project van 37 moderne vier- en twee-onder-een-kapwoningen gelegen bij La Serena Golf in Los Alcazares aan de prachtige Costa Calida. Deze moderne woningen zijn ontworpen voor kopers die op zoek zijn naar privacy, zon en een buitenleven op slechts 300 meter van het warme water van de Mar Menor. Los Alcazares is een charmant kustplaatsje dat bekend staat om zijn lange boulevard, zandstranden en ontspannen mediterrane sfeer. Het gebied geniet van meer dan 300 dagen zon per jaar en biedt uitstekende restaurants, winkels, jachthavens en sportfaciliteiten. De ligging tussen de zee en de golfbaan maakt het tot een van de meest gewilde bestemmingen in de regio voor zowel permanente woningen als vakantiehuizen. Moderne villa’s met privézwembad en buitenleven Elke woning beschikt over een eigen perceel met een privézwembad, waardoor het hele jaar door kan worden genoten van het mediterrane klimaat. De woningen hebben 3 slaapkamers en 2 of 3 badkamers plus gastentoiletten, waardoor ze comfortabele en functionele leefruimtes bieden die ideaal zijn voor gezinnen of gasten. De villa’s zijn ontworpen om het buitenleven te benadrukken. Naast het zwembad is er een barbecueplaats en een gastentoilet buiten, perfect voor het ontvangen van vrienden en familie. Het solarium op het dak biedt extra ruimte om te ontspannen in de zon en is voorzien van een zonnedouche met voorinstallatie voor een jacuzzi en een zomerkeuken. Parkeren is inbegrepen, zowel op het privéterrein als in een toegewezen ondergrondse parkeerplaats. Hoogwaardige afwerking en moderne voorzieningen De woningen zijn gebouwd met moderne materialen en hoogwaardige specificaties, ontworpen voor comfort en stijl. Volledig uitgeruste keuken met apparatuur in witte glazen afwerking Badkamers met verlichte spiegels, doucheschermen en wastafels Gemotoriseerde rolluiken Basisverlichtingspakket Volledig geïnstalleerde airconditioning Deze voorzieningen zorgen voor een comfortabele woonervaring, of de woning nu als hoofdverblijfplaats of als vakantiehuis wordt gebruikt. Resortachtige voorzieningen en uitstekende locatie Eigenaren hebben ook toegang tot gedeelde resortachtige faciliteiten met een naburig project. Deze voorzieningen omvatten aangelegde tuinen, een gemeenschappelijk zwembad in lagunestijl, een spa, een fitnessruimte en een sauna. De locatie biedt gemakkelijke toegang tot stranden, golfbanen en nabijgelegen steden. Mar Menor-strand 0,3 km La Serena Golf naast het project Centrum van Los Alcazares 2 km Cartagena 22 km Murcia 40 km Internationale luchthaven van Murcia 30 km Luchthaven Alicante Elche 90 km Het ondiepe water van de Mar Menor is het hele jaar door perfect om te zwemmen, zeilen, paddleboarden en andere watersporten te beoefenen. Verzeker uzelf van een mediterrane levensstijl in Los Alcazares Deze nieuwbouvvilla’s bieden de perfecte combinatie van strand, golf en modern comfort aan de Costa Calida. Neem vandaag nog contact met ons op voor meer informatie of om een bezichtiging te regelen en verzeker uzelf van uw nieuwe woning bij Serena Golf in Los Alcazares.

Video

Details van het eigendom
Referentie: 769758
Prijs: 630,000
Grootte van het eigendom: 110m2
Plot: 242m2
Slaapkamers: 3
Badkamers: 3
Genoteerd: 10/03/2026

Doe een aanvraag

Referentie: 769758

Tina Durán

Telefoon: (+34) 661 207 385

Mobiel: (+34) 661 207 385

E-mail: tina@sunvillasmurcia.com

(Open in nieuw venster)
Doe een aanvraag
Referentie: 769758

Telefoon:
(+34) 661 207 385

Mobiel:
(+34) 661 207 385

E-mail:

Doe een aanvraag

Deel